︎
MIKOLAJ WROBLEWSKI
Appartement
Chapter VII
2024
Project by MW
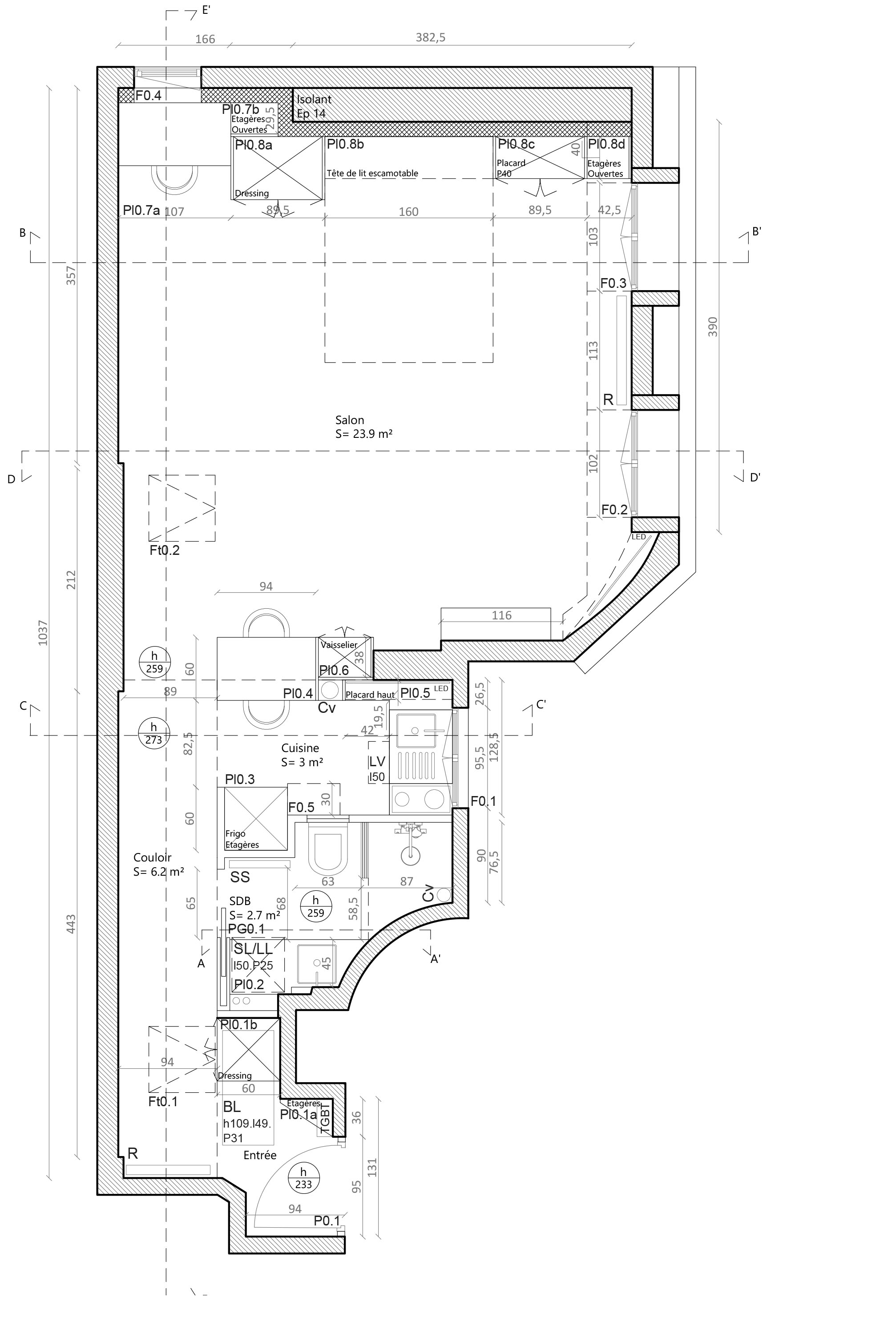
Transformation appartement :
Surface area - 40 m²
Curage complet
Agencement sur mesure
Noyau technique optimisé
Ouvertures des espaces
Rénovation énergétique
Running on Cargo